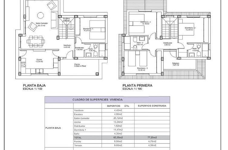
Nieuw gebouwde villa met 4 slaapkamers, solarium en groot perceel in Lorca.~~Nieuwe villa's in mediterrane stijl in een rustige woonwijk. Deze villa is verdeeld over twee verdiepingen. De begane grond bestaat uit 1 slaapkamer, 1 badkamer, woon-eetkamer, keuken, terras en veranda. De eerste...
Nieuw gebouwde villa met 4 slaapkamers, solarium en groot perceel in Lorca.~~Nieuwe villa's in mediterrane stijl in een rustige woonwijk. Deze villa is verdeeld over twee verdiepingen. De begane grond bestaat uit 1 slaapkamer, 1 badkamer, woon-eetkamer, keuken, terras en veranda. De eerste verdieping bestaat uit 3 slaapkamers, 2 badkamers (waarvan een en suite) en een solarium. De woning heeft een perceel van meer dan 500m2. Zwembad mogelijk tegen meerprijs.~~Ontdek een exclusieve ontwikkeling van vrijstaande villa's op percelen van meer dan 500 m2, strategisch gelegen in het zuidoosten van Spanje. Deze woningen bieden de perfecte combinatie van rust op het platteland, nabijheid van de kust en uitstekende wegverbindingen met grote steden en luchthavens.~~Genesteld in een bevoorrechte omgeving aan de Costa Cálida, profiteert dit project het hele jaar door van de zon, waardoor het een ideale locatie is om te genieten van de mediterrane levensstijl.~~Ruime, lichte huizen met privétuinen~Deze villa's zijn ontworpen voor maximaal comfort en ontspanning en hebben open woonruimten met grote ramen die binnen- en buitenruimten naadloos met elkaar verbinden. De royale privétuin biedt de perfecte setting voor ontspanning in de buitenlucht, met de optie om een zwembad toe te voegen en de tuinarchitectuur aan te passen.~~Je kunt kiezen uit drie villamodellen, beschikbaar met één of twee verdiepingen, met 3 of 4 slaapkamers en 2 of 3 badkamers. Elke woning heeft een privé solarium, zodat bewoners optimaal kunnen genieten van de prachtige omgeving.~~Een veilige en goed uitgeruste gemeenschap~Deze gesloten urbanisatie biedt een 24-uurs bewakingsdienst met gecontroleerde toegang, zodat alle bewoners gerust kunnen zijn. Ontworpen met groen wonen in het achterhoofd, bevat de gemeenschap:~~Twee grote aangelegde parken voor ontspanning en gezinsactiviteiten.~Speciale sport- en speelterreinen om een actieve levensstijl te bevorderen.~Met bomen omzoomde straten en een fietspad van 3,5 km langs de omtrek van de urbanisatie.~Een commerciële zone bij de ingang, met een restaurant, supermarkt, benzinestation en andere essentiële diensten.~~Hoogwaardige afwerking voor maximaal comfort~Elke villa is gebouwd met materialen van topkwaliteit en moderne installaties, waaronder:~Pre-installatie voor gekanaliseerde airconditioning~Pre-installatie voor aardgas~Beveiligde toegangsdeur~Climalit ramen met dubbele beglazing~Volledig omheinde gemeenschap met 24-uurs bewaking~~Toplocatie - dichtbij de kust en stadsvoorzieningen~Deze villa's liggen in een nieuw ontwikkeld gebied van de gemeente Lorca en bieden een natuurlijke en rustige omgeving met gemakkelijke toegang tot belangrijke locaties:~~Lorca centrum - 10 km~Águilas stranden - 20 km~Luchthaven Murcia-Corvera - 70 km~Luchthaven Alicante - 130 km~Winkelcentra en restaurants - 10 km~~Vind uw ideale huis in Costa Cálida~Met 50 reeds voltooide woningen en een totaal van 320 geplande woningen, is dit je kans om een nieuwe villa in mediterrane stijl te kopen in een bloeiende nieuwe gemeenschap. Of het nu voor permanente bewoning, vakantiehuis of investering is, deze woningen bieden uitstekende waarde op een toplocatie.~~Neem vandaag nog contact met ons op voor meer informatie en een bezichtiging!
Er zijn nog geen faciliteiten bekend bij dit verblijf
Locatie
Adres: 30800, Lorca
Meer informatie
Wilt u geheel vrijblijvend meer informatie (brochure) opvragen over deze woning, vul dan uw gegevens in:
Hartelijk bedankt voor uw aanvraag, u krijgt z.s.m. extra informatie over de woning toegestuurd.
Bedankt
Vrijstaande woning in Lorca
Vrijstaande woning in Lorca
Bedankt
Hartelijk dank voor je informatie aanvraag!
Deze is met succes verzonden. Je krijgt z.s.m. extra informatie toegezonden over deze woning.
DE EERSTE STAP NAAR JOUW 2E HUIS IN BINNEN- OF BUITENLAND IS GEZET.
Droom je van een eigen vakantiehuis of tweede verblijf? Op de Second Home Expo BEURS in
Brabanthallen, Den Bosch op vr 18 september - zo 20 september, ontdek je hoe ook jij deze droom kunt laten
uitkomen. Laat je inspireren door meer dan 150.000 vakantiewoningen in ruim 30 landen onder één dak. Of laat
je informeren door de vele aanwezige deskundigen die je tijdens de seminars met persoonlijk advies graag
helpen. Second Home Expo is tijdens de beurs dagelijks geopend van 10:00 - 17:00 uur.
PAK NOG SNEL JE VRIJKAARTEN, WANT OP = OP
Wij mogen 2 gratis kaartjes weggeven
ONTVANG 2 GRATIS VRIJKAARTEN
Bedankt voor het registreren van 2 gratis vrijkaarten.
Je ontvangt zo spoedig mogelijk een bevestiging van je aanvraag.
Door te registreren ga je akkoord met de Algemene voorwaarden en Privacybeleid. Je zult deals van Villaokay en onze partner Holland-vakantiehuis ontvangen.